Опоры Т4.00 серия 4.903-10 выпуск 4 неподвижные лобовые двухупорные
Ниже представлены технические характеристики и параметры для серии Опоры Т4.00 серия 4.903-10 выпуск 4 неподвижные лобовые двухупорные.
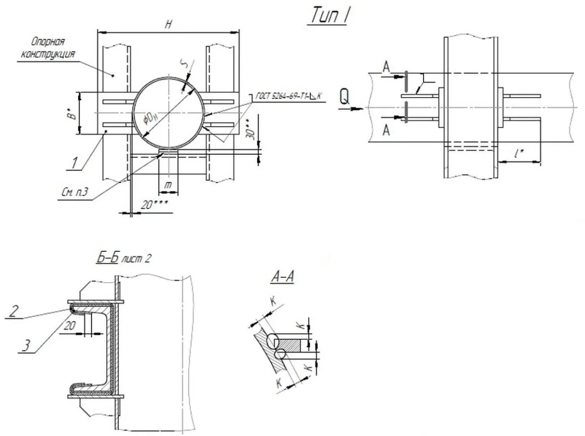
Опора Т4.00 серия 4.903-10 выпуск 4 неподвижная лобовая двухупорная Дн 108 — 1420 мм.
Опоры неподвижные лобовые Т4.00 предназначены для крепления стальных технологических трубопроводов различного назначения с наружным диаметром dн от 108 до 1420 мм. Изготавливаются в соответствии с ТУ-04698606-001-04 ''Опоры трубопроводов'', серия 4.903-10 выпуск 4.
Опора неподвижная Т4 состоит из 4 сварных упоров. Упоры привариваются к трубопроводу при монтаже.
Опора неподвижная лобовая двухупорная серия 4.903-10 выпуск 4.
Назначение – жесткое крепление трубопровода, не позволяющее перемещаться трубопроводу под действием нагрузок, образующихся при изменении температуры рабочей среды и других действующих на трубопровод факторах. Применяются при подземной и надземной прокладке трубопроводов тепловых сетей наружным диаметром от Дн 108 до Дн 1420 мм. Стандартно неподвижные лобовые опоры Т4 изготавливаются из марок стали — ст3,20,09Г2С.. Стандартное покрытие – транспортировочный грунт ГФ-021.
Пример условного обозначения опоры неподвижной лобовой Т4 для трубопровода 108:
Опора 108-Т4.01 серия 4.903-10 выпуск 4
![]()
![]()
Технические характеристики
| Обозначение | Наружный диаметр, dн | Высота, мм | Длина, мм | Ширина, мм | Масса, кг | Цена руб. с НДС |
|---|---|---|---|---|---|---|
| Опора неподвижная Т4.01 | 108 | 230 | 110 | 70 | 4,24 | 720,0 |
| Опора неподвижная Т4.02 | 133 | 260 | 80 | 4,4 | 740,0 | |
| Опора неподвижная Т4.03 | 159 | 320 | 112 | 90 | 6,6 | 980,0 |
| Опора неподвижная Т4.04 | 194 | 360 | 100 | 6,88 | 1000,0 | |
| Опора неподвижная Т4.05 | 219 | 420 | 132 | 120 | 11,64 | 1370,0 |
| Опора неподвижная Т4.06 | 273 | 480 | 11,28 | 1330,0 | ||
| Опора неподвижная Т4.07 | 325 | 530 | 162 | 12,6 | 1450,0 | |
| Опора неподвижная Т4.08 | 377 | 580 | 140 | 14,16 | 1560,0 | |
| Опора неподвижная Т4.09 | 426 | 660 | 196 | 160 | 26,72 | 2880,0 |
| Опора неподвижная Т4.10 | 480 | 720 | 180 | 26,92 | 2900,0 | |
| Опора неподвижная Т4.11 | 530 | 770 | 226 | 200 | 32,32 | 3390,0 |
| Опора неподвижная Т4.12 | 630 | 870 | 240 | 33,68 | 3470,0 | |
| Опора неподвижная Т4.13 | 720 | 960 | 266 | 280 | 38,4 | 3890,0 |
| Опора неподвижная Т4.14 | 820 | 1060 | 300 | 40 | 4030,0 | |
| Опора неподвижная Т4.15 | 920 | 1160 | 320 | 42,4 | 4240,0 | |
| Опора неподвижная Т4.16 | 1020 | 1260 | 286 | 360 | 48,8 | 4870,0 |
| Опора неподвижная Т4.17 | 1220 | 1480 | 336 | 400 | 58,8 | 5870,0 |
| Опора неподвижная Т4.18 | 1420 | 1680 | 500 | 66 | 6570,0 |