Опоры Т12.00 серия 4.903-10 выпуск 4 неподвижные хомутовые
Ниже представлены технические характеристики и параметры для серии Опоры Т12.00 серия 4.903-10 выпуск 4 неподвижные хомутовые.
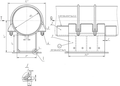
Опоры Т12 серия 4.903-10 выпуск 4 хомутовые неподвижные Дн 57 - 377 мм
Опоры неподвижные хомутовые Т12.00 предназначены для крепления стальных технологических трубопроводов различного назначения с наружным диаметром от 57 до 377мм. Изготавливаются в соответствии с ТУ-04698606-001-04 'Опоры трубопроводов', серия 4.903-10 выпуск 4.
Опора Т12.00 неподвижная хомутовая состоит из гнутых хомутов, штампованного корпуса с приваренной подушкой, ушами, ребрами жесткости и упоров. Упоры привариваются к трубопроводу при монтаже.
Опоры неподвижные хомутового типа вида Т12 применяются при монтаже различных типов технологических трубопроводов. Использование данного типа опор зарекомендовало себя с различными типами трубопроводов, но чаще всего такие крепления используются с трубами на теплосетях и других коммуникациях ЖКХ. Использование данного типа опор помогает обезопасить трубу от неблагоприятного внешнего воздействия различных нагрузок и сил. В частности, данный тип опор компенсирует вибрацию, сдвиги в результате нагрузки на трубу осевого и бокового типа. Эти особенности работы опоры позволяют обеспечить целостность трубы на всех участках трубопровода с максимальной протяженностью. Опоры Т12 могут применяться как с трубопроводами с подземным типом прокладки, так и с надземными коммуникациями.
Пример условного обозначения опоры неподвижной хомутовой Т12 для трубопровода Ду57 высотой 100 мм:
Опора неподвижная Т12.01 Ду 57
Опора Т 12.00 неподвижная серия 4.903-10 выпуск 4 состоит из: Корпус — 1 шт. Упор — 4 шт. Хомут — 2 шт. Гайка — 8 шт.
![]()
Технические характеристики
| Обозначение | Наружный диаметр, dн | Высота, мм | Длина, мм | Ширина, мм | Масса, кг | Цена руб. с НДС |
|---|---|---|---|---|---|---|
| Опора неподвижная Т12.01 | 57 | 130 | 340 | 90 | 3,8 | 1330,0 |
| Опора неподвижная Т12.02 | 180 | 4,7 | 1650,0 | |||
| Опора неподвижная Т12.03 | 230 | 5,6 | 1950,0 | |||
| Опора неподвижная Т12.04 | 76 | 138 | 108 | 4,1 | 1440,0 | |
| Опора неподвижная Т12.05 | 188 | 4,9 | 1715,0 | |||
| Опора неподвижная Т12.06 | 238 | 6 | 2000,0 | |||
| Опора неподвижная Т12.07 | 89 | 145 | 128 | 4,3 | 1500,0 | |
| Опора неподвижная Т12.08 | 195 | 5,2 | 1820,0 | |||
| Опора неподвижная Т12.09 | 245 | 6,2 | 2150,0 | |||
| Опора неподвижная Т12.10 | 108 | 154 | 150 | 5,8 | 2030,0 | |
| Опора неподвижная Т12.11 | 204 | 6,9 | 2410,0 | |||
| Опора неподвижная Т12.12 | 254 | 8 | договорн. | |||
| Опора неподвижная Т12.13 | 133 | 165 | 170 | 6,8 | договорн. | |
| Опора неподвижная Т12.14 | 215 | 7,8 | договорн. | |||
| Опора неподвижная Т12.15 | 265 | 8,9 | договорн. | |||
| Опора неподвижная Т12.16 | 159 | 180 | 200 | 7,5 | договорн. | |
| Опора неподвижная Т12.17 | 230 | 8,5 | договорн. | |||
| Опора неподвижная Т12.18 | 280 | 9,5 | договорн. | |||
| Опора неподвижная Т12.19 | 194 | 197 | 250 | 21,4 | договорн. | |
| Опора неподвижная Т 12.20 | 247 | 24,1 | договорн. | |||
| Опора неподвижная Т 12.21 | 297 | 27,1 | договорн. | |||
| Опора неподвижная Т12.22 | 219 | 210 | 275 | 22,3 | договорн. | |
| Опора неподвижная Т12.23 | 260 | 24,9 | договорн. | |||
| Опора неподвижная Т12.24 | 310 | 27,6 | договорн. | |||
| Опора неподвижная Т12.25 | 273 | 237 | 340 | 25,9 | договорн. | |
| Опора неподвижная Т12.26 | 287 | 28,9 | договорн. | |||
| Опора неподвижная Т12.27 | 337 | 31,5 | договорн. | |||
| Опора неподвижная Т12.28 | 325 | 263 | 395 | 30,4 | договорн. | |
| Опора неподвижная Т 12.29 | 313 | 33,3 | договорн. | |||
| Опора неподвижная Т12.30 | 363 | 36 | договорн. | |||
| Опора неподвижная Т12.31 | 377 | 289 | 450 | 33,5 | договорн. | |
| Опора Т12.32 неподвижная | 339 | 36,2 | договорн. | |||
| Опора Т12.33 неподвижная | 389 | 38,8 | договорн. |