Логотип АстронЭнерго

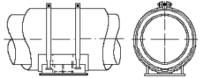
Опоры ОПМ подвижные для теплопроводов в ППУ изоляции

Опоры ОПМ подвижные  для теплопроводов в  ППУ изоляции

Опоры ОПМ для труб в ППУ изоляции. Специализированные скользящие опоры, разработанные для монтажа предизолированных трубопроводов теплосетей. Обеспечивают сохранность оболочки ППУ при температурных перемещениях трубы.