Логотип АстронЭнерго

Компенсатор сальниковый

Компенсатор сальниковый
Тип Т1.00.00.000
Предлагаем поставку сальниковых компенсаторов по альбому ТС-589…580.00.000:
Сальниковые компенсаторы предназначены для компенсации температурных изменений длины трубопроводов.Сальниковые компенсаторы разработаны для трубопроводов паровых и водяных и тепловых сетей с параметрами воды и пара до 25 кгс/см2 при температуре воды до 200 С и пара до 300 С, при этом односторонние компенсаторы - для условных проходов от Dу 100 - 1400 мм, а двухсторонние от Dу 100 - 800 мм.

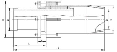
Компенсатор сальниковый односторонний.



Компенсатор сальниковый двухсторонний.



Сальниковые компенсаторы допускаются применять в районах строительства тепловых сетей с расчетной температурой наружного воздуха для проектирования отопления не ниже - 40 С. При прокладке трубопроводов на мачтах сальниковые компенсаторы не ставят. Уплотнительная набивка компенсаторов состоит из резиновых и асбестовых или асбестово-проволочных колец. При температуре теплоносителя Т<=150 С применяют уплотняющие кольца из теплостойкой резины, которые укладывают асбестовыми кольцами так, чтобы перед ними со стороны грунд-буксы находились одно-два асбестовых кольца.
Для контроля за работой компенсатора на его движущемся патрубке наносят несмываемой краской деления через каждые 50 мм, от торца грунд-буксы.
Материальное исполнение: Сталь 3сп5.
Сальниковые компенсаторы изготавливаются в соответствии с типовыми конструкциями серии 5-903-13 выпуск 6 1988 г., 4-903-10 выпуск 7 1988 г. Ду 100-1400 мм, Ру 1,6-2,5 Мпа

В этом разделе пока нет товаров.